U gebruikt een verouderde internetbrowser.
We raden u aan om de meest recente internetbrowser te installeren voor de beste weergave van deze website.
Een internetbrowser die up to date is, staat ook garant voor veilig surfen.

Neerstraat 357 / B, 9250 Waasmunster
Vraagprijs: € 510.000

Omschrijving

Prachtige halfopen pastorijwoning met landelijk karakter in Waasmunster - VOLLEDIG AFGEWERKT

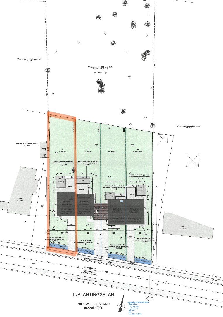
Ontdek deze charmante halfopen pastorijwoning (lot 1) in het groene, pittoreske Waasmunster.

De woning wordt opgeleverd als volledig afgewerkt. Vraag ons naar de voorwaarden. Liever ruwbouw winddicht? Dat is ook mogelijk.

Binnen biedt de woning een warme landelijke sfeer, met een ruime woonkamer en open keuken, berging, apart toilet, drie slaapkamers, een badkamer met ligbad en douche, een tweede toilet en een ruime zolder.

Buiten geniet je van een grote tuin met terras en prachtig uitzicht op de natuur. Een inpandige garage en oprit zorgen voor voldoende parkeergelegenheid.

Uniek extra: mogelijkheid tot aankoop van het achterliggende perceel van ca. 2.000 m² voor maximale privacy en ruimte.

Een ideale gezinswoning op een rustige locatie, met volop mogelijkheden om je woonwensen waar te maken. Mis deze kans niet!


Kenmerken

Algemeen

Adres:Neerstraat 357/B
Waasmunster
Referentie:NEERSTR 357 B lot 1
Vraagprijs:€ 510.000
Type:Woning
Beschikbaar vanaf:Bij oplevering
Ligging:Vrij uitzicht, Landelijk, Buiten bebouwde kom, Gemeente, Bosrijke omgeving
Perceeloppervlakte:514 m²
Perceelbreedte:10 m
Perceeldiepte:50 m
Bewoonbare opp.:179 m²
Type constructie:Traditioneel
Bouwjaar:2025
Gevelbreedte:7 m
Bouwlagen:2

Indeling

Slaapkamers:3
Badkamers:1
Douchekamer:1
WC:2
Woonkamer:29 m², Woonkamer
Keuken:16 m², Open keuken
Berging:7 m²
Zolder:28 m²
Terras:15 m²
Tuin:423 m²
Tuin breedte:10 m
Tuin kwaliteit:Aan te leggen
Garage:1
Garage Oppervlakte:18 m²
Parking:1
Parking Types:Privé

Informatieplicht

Overstromingsgevoelig:Niet meegedeeld
Overstromingsgebied:Niet meegedeeld
Erfgoed:Niet meegedeeld

Ligging

Streetview

Neem vrijblijvend contact op

Wenst u meer informatie of het pand te bezoeken? Contacteer ons vrijblijvend voor meer informatie. 
Wanneer wij uw aanvraag hebben ontvangen zullen wij verder contact met u opnemen. 


U moet akkoord gaan met het privacybeleid van deze website
* Verplicht in te vullen

Bel ons

U kan ons telefonisch bereiken via  09 348 37 19

Niet gevonden wat u zocht? Schrijf u dan vrijblijvend in op onze nieuwsbrief en blijf op de hoogte van ons recentste aanbod.
Schrijf u in
Terug naar boven
Sluit menu Woonbureau Lokeren