U gebruikt een verouderde internetbrowser.
We raden u aan om de meest recente internetbrowser te installeren voor de beste weergave van deze website.
Een internetbrowser die up to date is, staat ook garant voor veilig surfen.

Helaas, dit pand is verkocht

9250 Waasmunster

Omschrijving

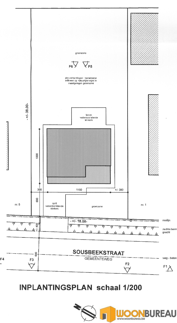
Nog te bouwen - Moderne nieuwbouw woning te Waasmunster - Sousbeekstraat.

De moderne open bebouwing is gelegen in de Ruiter van Waasmunster en is voorzien van allen modern comfort.
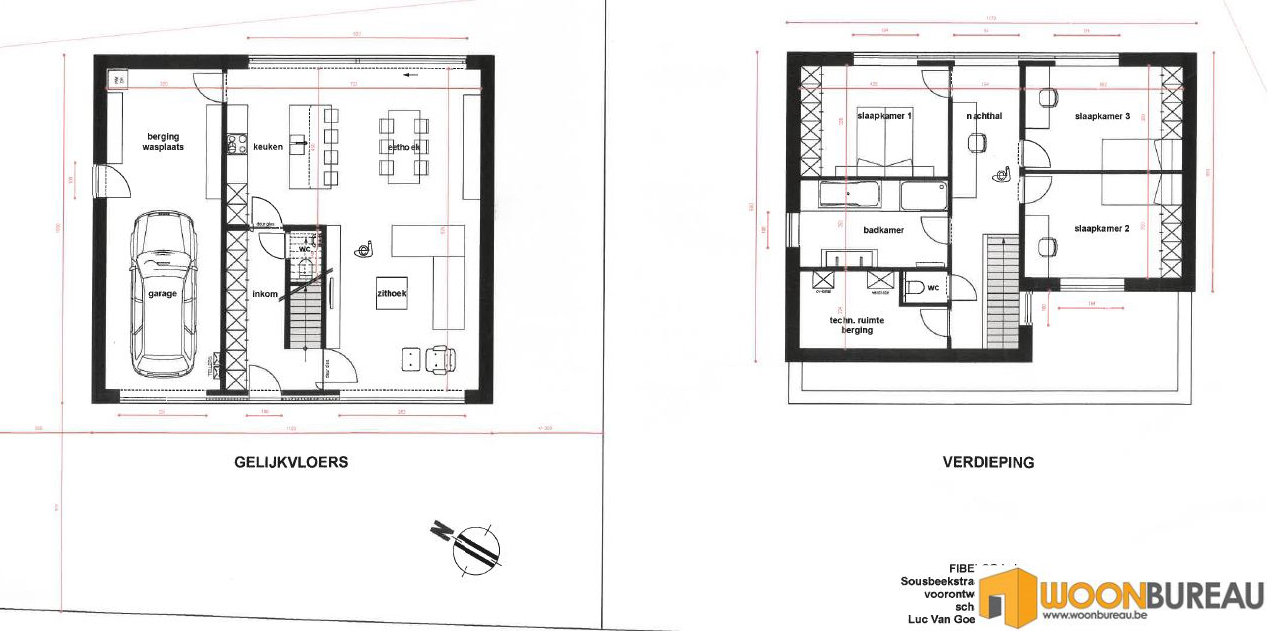
De woning wordt afgewerkt met de modernste technieken en is voorzien van zonnepanelen, vloerverwarming en een Dominica systeem, de indeling van de woning omvat een ruime inkomhal met mogelijkheid voor het plaatsen van een grote ingemaakte kast - ruime woonkamer met een open keuken aanpalende berging / garage . Op de eerste verdieping hebben we een overloop met mogelijkheid voor een buro hoekje, drie ruime slaapkamers, een ingerichte badkamer met de mogelijkheid om bad inloopdouche en dubbel lavabo meubel te plaatsen verder hebben we op de eerste verdieping nog een technische ruimte/berging. - de woning wordt gebouwd volgens de nieuwste energie EPB wetgeving - de kopers heeft nog inspraak in alle materialen volgen de voorzien budgetten.
Opleverbaar tegen verlof 2021.
Voor bijkomde informatie mag je ons steeds mailen of bellen.


Bel ons

U kan ons telefonisch bereiken via  09 348 37 19

Niet gevonden wat u zocht? Schrijf u dan vrijblijvend in op onze nieuwsbrief en blijf op de hoogte van ons recentste aanbod.
Schrijf u in
Terug naar boven
Sluit menu Woonbureau Lokeren