U gebruikt een verouderde internetbrowser.
We raden u aan om de meest recente internetbrowser te installeren voor de beste weergave van deze website.
Een internetbrowser die up to date is, staat ook garant voor veilig surfen.

Helaas, dit pand is verkocht

9160 Lokeren

Omschrijving

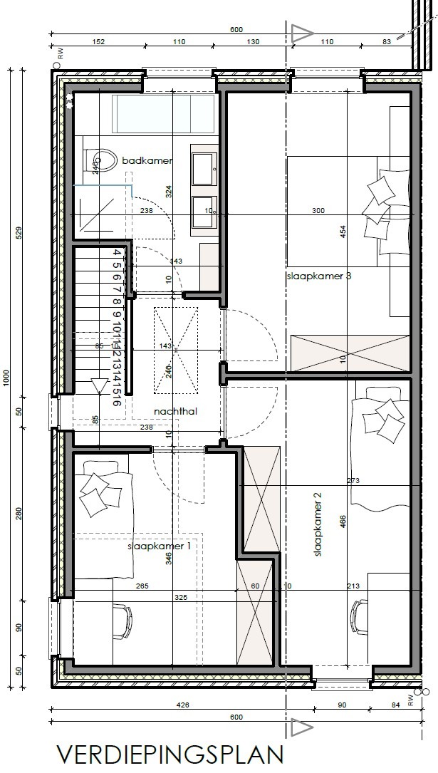
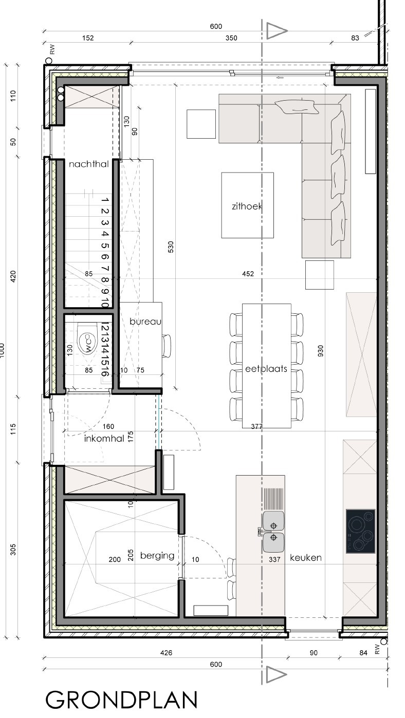
Nieuw te bouwen woning Kerkelandstraat 12 Lokeren

Moderne nieuwbouw volgens recentste normen qua isolatie en ventilatie; gelegen in kleine verkaveling net buiten centrum Lokeren, maar toch slechts op 5 minuten van centrum en handelszaken.
Voorzien van inkom met trap en toilet, living met open ingerichte keuken, berging, 3 slaapkamers, toilet, zolder.


Bel ons

U kan ons telefonisch bereiken via  09 348 37 19

Niet gevonden wat u zocht? Schrijf u dan vrijblijvend in op onze nieuwsbrief en blijf op de hoogte van ons recentste aanbod.
Schrijf u in
Terug naar boven
Sluit menu Woonbureau Lokeren