U gebruikt een verouderde internetbrowser.
We raden u aan om de meest recente internetbrowser te installeren voor de beste weergave van deze website.
Een internetbrowser die up to date is, staat ook garant voor veilig surfen.

Helaas, dit pand is verkocht

9160 Lokeren

Omschrijving

Nieuwbouw woning in te Lokeren in nieuwe verkaveling

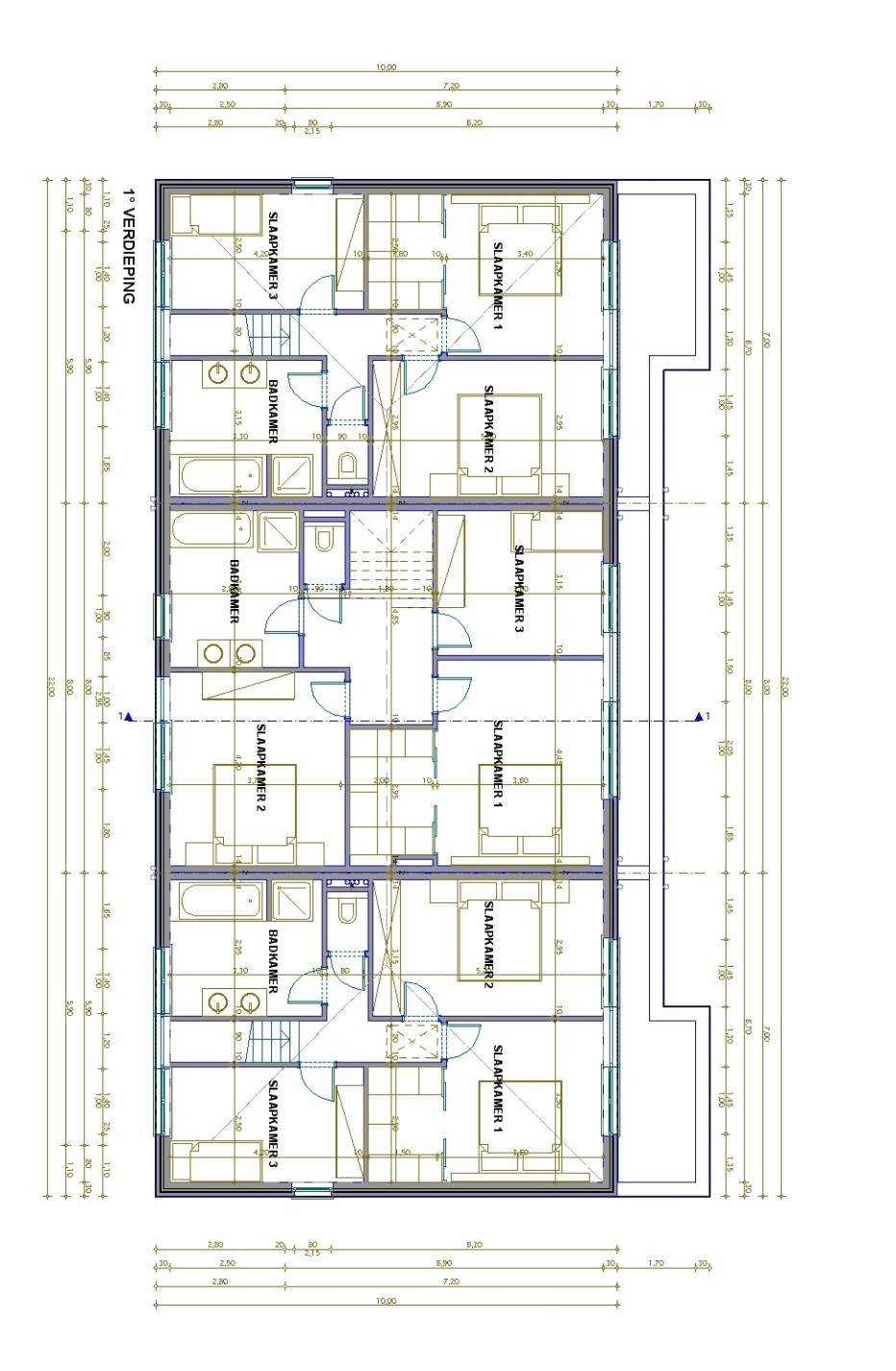
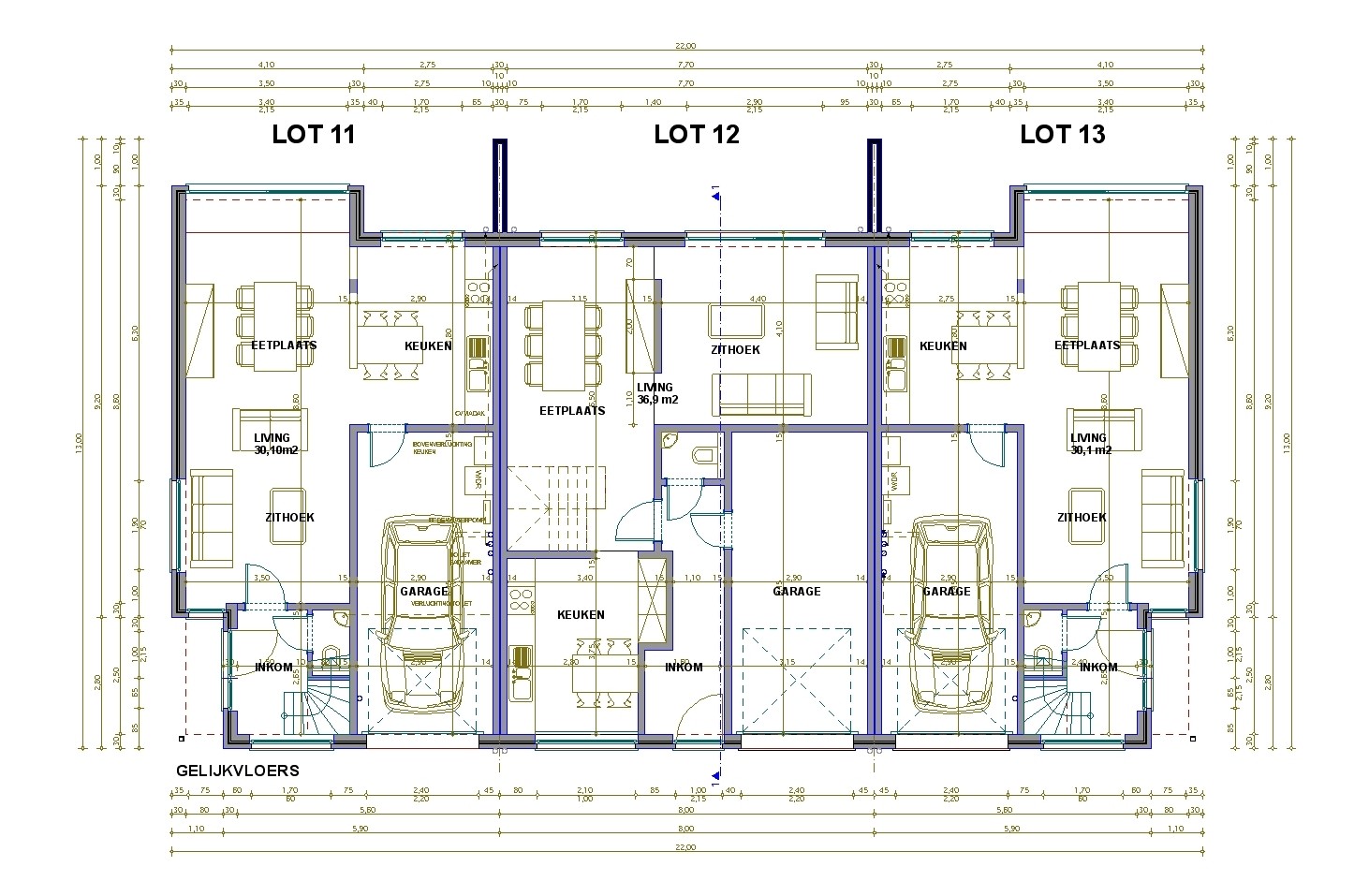
Woning in ruwbouw/winddicht - afgewerkt tot en met chape- en pleisterwerken - Kerkelandstraat Lokeren. Op een oppervlakte van 416 m². op 2 min van centrum Lokeren en snelweg E-17, nabij grote winkelketens en kleinhandels. Deze woning omvat o.a een ruime living, keuken- en badkamerruimte, 3 slaapkamers, dressingruimte, inpandige garage en tuin. Deze woning is een perfecte gezinswoning vanwege zijn kindvriendelijke omgeving en ligging! Ook ideaal als investering! Bel het kantoor voor een bezoek 09/348.37.19.


Bel ons

U kan ons telefonisch bereiken via  09 348 37 19

Niet gevonden wat u zocht? Schrijf u dan vrijblijvend in op onze nieuwsbrief en blijf op de hoogte van ons recentste aanbod.
Schrijf u in
Terug naar boven
Sluit menu Woonbureau Lokeren