U gebruikt een verouderde internetbrowser.
We raden u aan om de meest recente internetbrowser te installeren voor de beste weergave van deze website.
Een internetbrowser die up to date is, staat ook garant voor veilig surfen.

Helaas, dit pand is verkocht

9160 Lokeren

Omschrijving

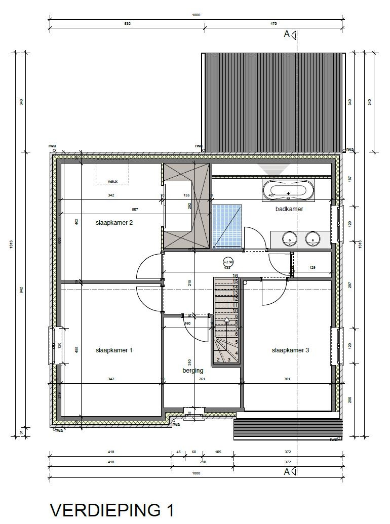
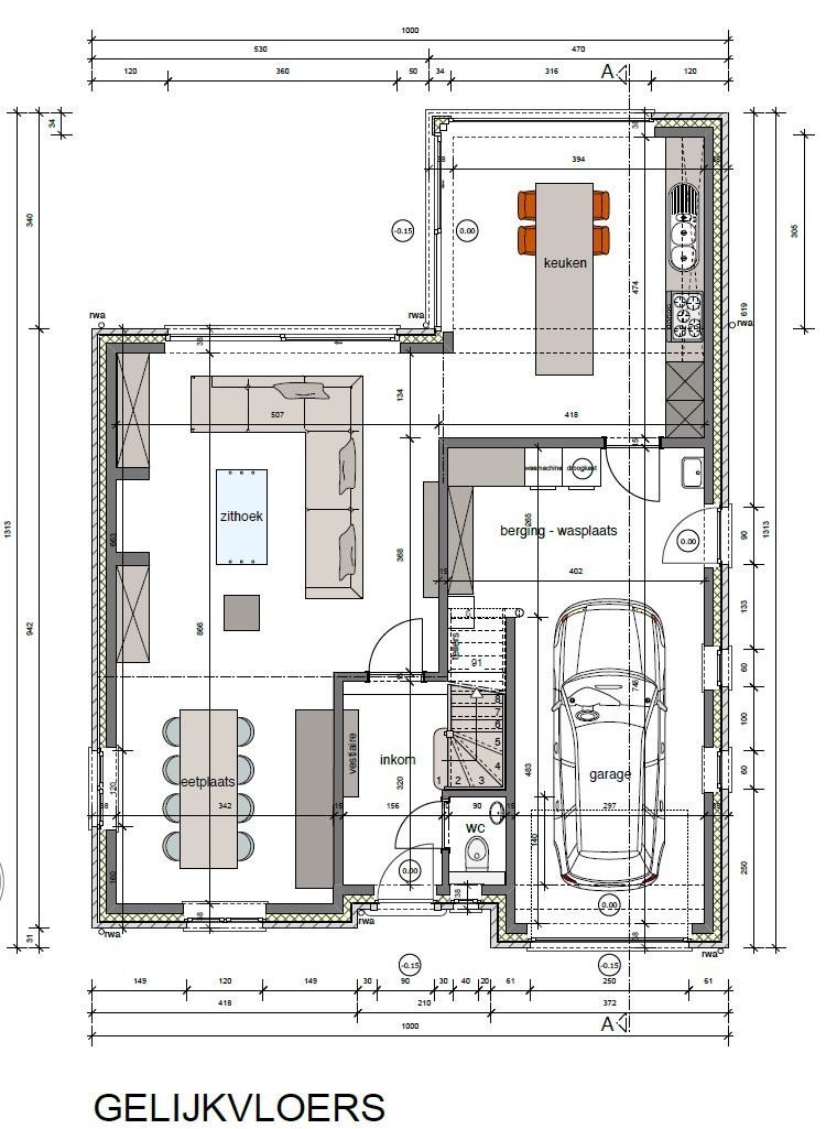
NIEUWBOUW PASTORIJ WONING te Lokeren - J. Peestraat.

Voorzien van inkom met trap en toilet - ruime living - ingerichte keuken met toestellen plafond is open tot in de nok - berging - garage - overloop - drie slaapkamers - dressing/berging - ingerichte badkamer met douche, ligbad en badkamermeubel - afzonderlijk toilet - ruime zuid gerichte tuin - zolder (met mogelijkheid tot vaste trap) - voorzien van alle modern comfort - zonnepanelen - volgens de nieuwste EPB normen. - gelegen in een rustige doodlopende verkaveling.


Bel ons

U kan ons telefonisch bereiken via  09 348 37 19

Niet gevonden wat u zocht? Schrijf u dan vrijblijvend in op onze nieuwsbrief en blijf op de hoogte van ons recentste aanbod.
Schrijf u in
Terug naar boven
Sluit menu Woonbureau Lokeren