U gebruikt een verouderde internetbrowser.
We raden u aan om de meest recente internetbrowser te installeren voor de beste weergave van deze website.
Een internetbrowser die up to date is, staat ook garant voor veilig surfen.

Schoolstraat 49 / 0201, 9160 Lokeren
Vraagprijs: € 509.000

Omschrijving

Karaktervolle "BEN" luxe duplex-appartement gelegen in het hart van Lokeren

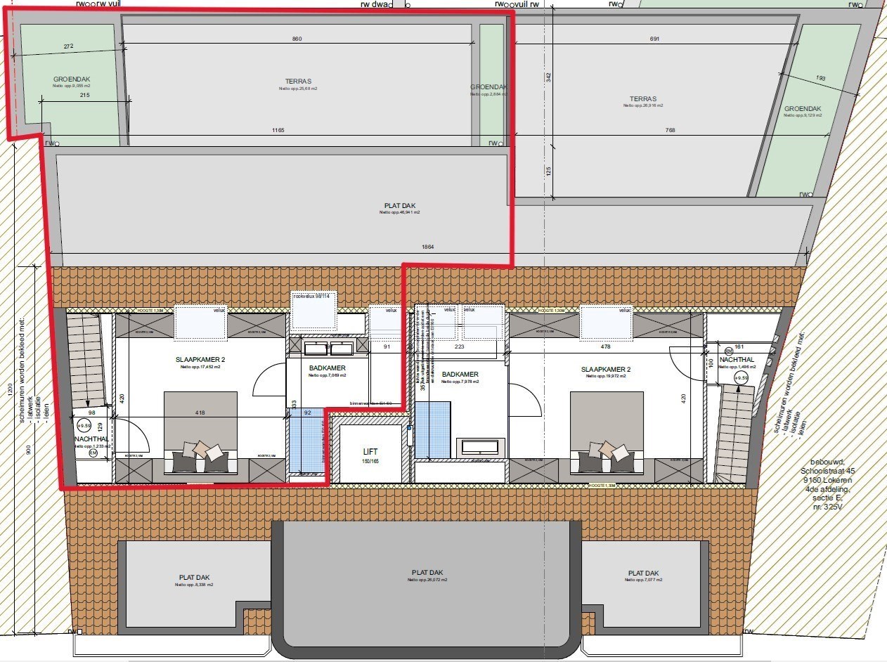
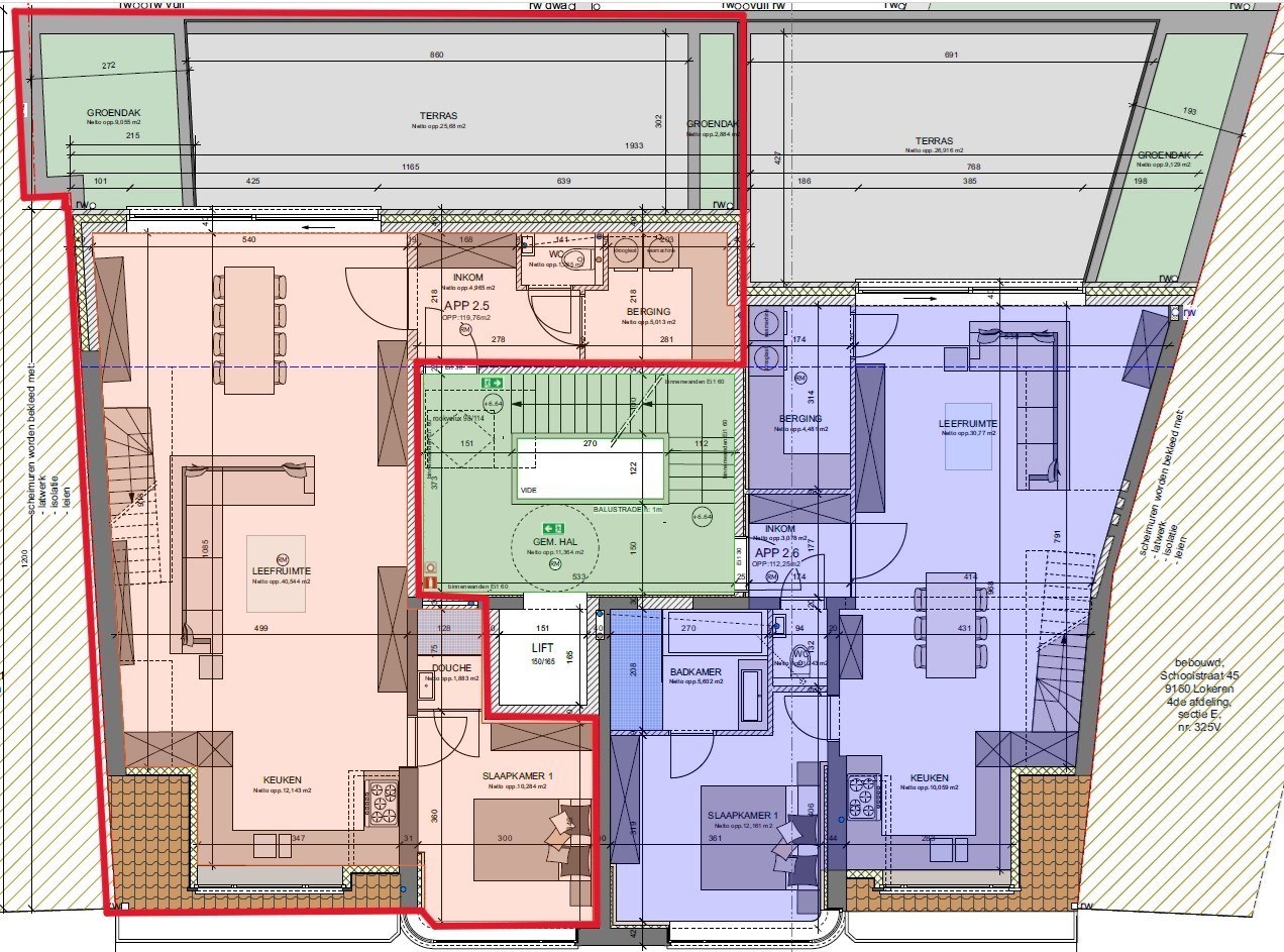
Ruim en luxueuze duplex appartement van 145 m². (waarvan 25 m² terras).
Residentie Salus, een voormalige dokterswoning die met oog voor detail en respect voor authenticiteit werd omgevormd tot een stijlvol woonproject.

De indeling bestaat uit een lichtrijke leefruimte met volledig uitgeruste keuken en aansluitende berging op de tweede verdieping. Op deze verdieping bevindt zich ook een slaapkamer met een en suite douchekamer. Via de leefruimte heb je toegang tot het ruime terras van 25 m². Op de bovenverdieping is er een bijzonder ruime slaapkamer met en suite badkamer, voorzien van alle comfort en mogelijkheid tot zowel bad als douche. Een apart gastentoilet vervolledigt het geheel.

De tweede verdieping is zowel via de trap als met de lift bereikbaar, en de residentie is rolstoeltoegankelijk.

Het nieuwbouwappartement is uitgerust met een geothermische warmtepomp, zonnepanelen en voldoet aan de strengste energienormen, wat bijdraagt tot een bijzonder laag verbruik.

Bovendien is er een autostaanplaats, private fietsenberging en kelderberging inbegrepen.

Dankzij de centrale ligging zijn de Markt, winkels, openbaar vervoer, horeca en scholen vlot te voet bereikbaar.

Neem vandaag nog contact op voor meer informatie of een bezoek ter plaatse!


Kenmerken

Algemeen

Adres:Schoolstraat 49/0201
Lokeren
Referentie:Schoolstr49
Vraagprijs:€ 509.000
Type:Duplex
Beschikbaar vanaf:Bij oplevering
Ligging:Stad centrum
Perceelbreedte:16,49 m
Bewoonbare opp.:120 m²
Type constructie:Traditioneel
Bouwjaar:2025
Gevelbreedte:16,49 m
Op verdieping:2
Algemene staat:Luxe-afwerking

Indeling

Kamers:2
Slaapkamers:2
Badkamers:2
WC:1
Woonkamer:30 m²
Keuken:17 m², Open keuken, Ingericht met toestellen
Berging:8 m²
Kelder:3 m²
Terras:25 m²
Parking:1
Parking Types:Privé

Comfort

Snelweg:Ja - op 1000 m tot 1500 m
Treinstation:Ja - op 500 m tot 1000 m
Busknooppunt:Ja - op 500 m tot 1000 m
Bushalte:Ja - op minder dan 500 m
Winkel:Ja - op minder dan 500 m
School:Ja - op minder dan 500 m
Kinderopvang:Ja - op minder dan 500 m
Bank:Ja - op minder dan 500 m
Ontspanning:Ja - op minder dan 500 m
Restaurant:Ja - op minder dan 500 m
Raamwerk:Draai-/kiepramen, PVC
Dak:Zadeldak
Gevel:Baksteen
Fundering:Kelder
Beglazing:Hoogrendementsglas
Verwarming:Vloerverw. geheel, Warmtepomp
Isolatie:Volledig geïsoleerd
Lift:Ja

Informatieplicht

Stedenbouwkundig attest:Ja
Stedenbouwkundige vergunning:Ja
Voorkooprecht:Neen
Verkavelingsvergunning van toepassing:Ja
Stedenbouwkundige bestemming:Woongebied
Dagvaarding en herstelvordering:Geen rechterlijke herstelmaatregel of bestuurlijke maatregel opgelegd
Overstromingsgevoelig:Geen overstromingsgevoelig gebied
Overstromingsgebied:Geen afgebakende zones
Overstromingskans perceel (P-score):A
Overstromingskans gebouw (G-score):A
Erfgoed:Beschermd erfgoed

Ligging

Streetview

Neem vrijblijvend contact op

Wenst u meer informatie of het pand te bezoeken? Contacteer ons vrijblijvend voor meer informatie. 
Wanneer wij uw aanvraag hebben ontvangen zullen wij verder contact met u opnemen. 


U moet akkoord gaan met het privacybeleid van deze website
* Verplicht in te vullen

Bel ons

U kan ons telefonisch bereiken via  09 348 37 19

Niet gevonden wat u zocht? Schrijf u dan vrijblijvend in op onze nieuwsbrief en blijf op de hoogte van ons recentste aanbod.
Schrijf u in
Terug naar boven
Sluit menu Woonbureau Lokeren