U gebruikt een verouderde internetbrowser.
We raden u aan om de meest recente internetbrowser te installeren voor de beste weergave van deze website.
Een internetbrowser die up to date is, staat ook garant voor veilig surfen.

Helaas, dit pand is verkocht

9160 Lokeren

Omschrijving

Energiezuinig nieuwbouwappartement met twee slaapkamers in Lokeren

Dit moderne instapklare appartement (2020) is gelegen in het hartje van Lokeren, biedt alle moderne faciliteiten en is het ontworpen met het oog op functionaliteit en esthetiek.

Het appartement beschikt over een ruime woonkamer met veel natuurlijk lichtinval, waardoor het een aangename en uitnodigende sfeer biedt. De open keuken is volledig uitgerust met hoogwaardige apparatuur.

Met twee slaapkamers is er voldoende ruimte voor een gezin of om gasten te ontvangen. Beide slaapkamers bieden voldoende opbergruimte. De badkamer is modern en voorzien van een inloopdouche en wastafel.

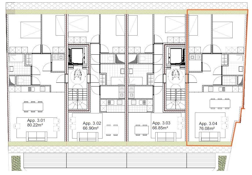
Dit appartement is gelegen in Residentie Sering (3de verdieping - App. 3.04) met een lift, wat het gemakkelijk maakt om toegang te krijgen tot de verschillende verdiepingen. Daarnaast beschikt het appartement over een ondergrondse garage met zijn eigen autostaanplaats en private kelderberging, welke inbegrepen zijn in de verkoopprijs!

Met een bewoonbare oppervlakte van 69 vierkante meter biedt dit appartement voldoende ruimte om comfortabel te leven. Het E-peil van 39 is uitstekend, wat betekent dat het appartement energiezuinig is en u kunt genieten van lagere energiekosten.

Kortom, dit appartement in Lokeren biedt alles wat u nodig heeft voor een comfortabel en modern leven. Met zijn moderne faciliteiten, ruime slaapkamers, eigen ondergrondse autostaanplaats, private kelderberging en energiezuinigheid, is het een ideale keuze voor iedereen die op zoek is naar een stijlvolle en praktische woning.
Alsook zou dit een ideale opbrengsteigendom zijn, met een verhuurwaarde van €720 per maand.

Aarzel niet en contacteer ons vandaag nog voor meer info of een bezichtiging!


Bel ons

U kan ons telefonisch bereiken via  09 348 37 19

Niet gevonden wat u zocht? Schrijf u dan vrijblijvend in op onze nieuwsbrief en blijf op de hoogte van ons recentste aanbod.
Schrijf u in
Terug naar boven
Sluit menu Woonbureau Lokeren