Dit lichtrijke en instapklare appartement in Lokeren biedt een comfortabele woonomgeving en is ideaal voor alleenstaanden die op zoek zijn naar een praktische en energiezuinige woning.
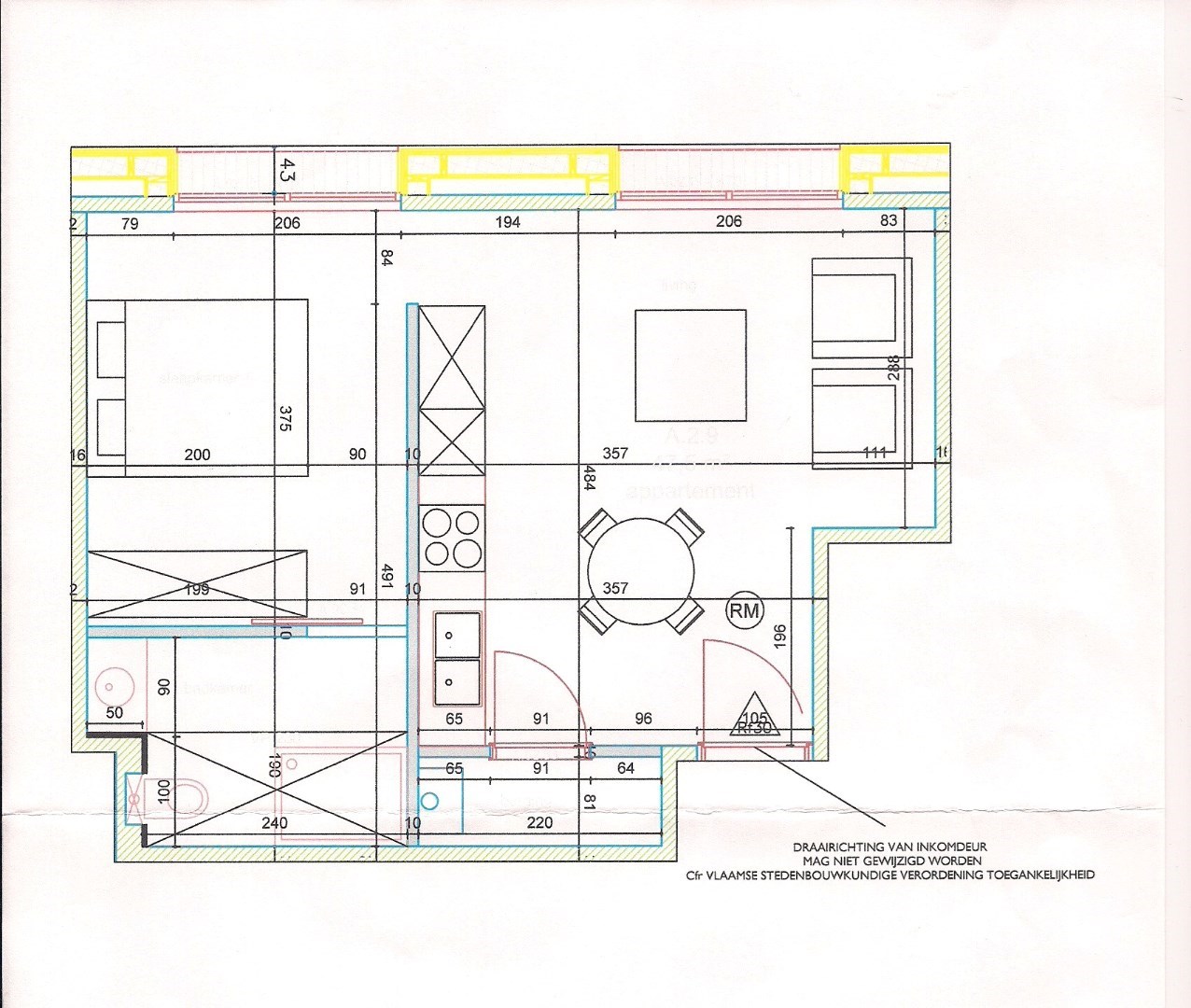
Bij binnenkomst betreedt u de gezellige woonkamer met een open ingerichte keuken, voorzien van een koelkast, kookvuur, dampkap en vaatwasser. Het appartement is voorzien van één slaapkamer. De ingerichte badkamer is uitgerust met een badkamermeubel, een inloopdouche en een toilet.
Een extra troef is de bijhorende privéparkeerplaats, wat een groot voordeel biedt in een centraal gelegen woonomgeving.
Dit appartement is beschikbaar vanaf mei 2025 en de huurprijs bedraagt €650 en €75 vaste kosten/ maand.
Interesse? Neem contact met ons op voor meer informatie of een bezichtiging. Dit appartement kan binnenkort uw nieuwe thuis zijn!
U kan ons telefonisch bereiken via 09 348 37 19